Guide Price
£2,200,000
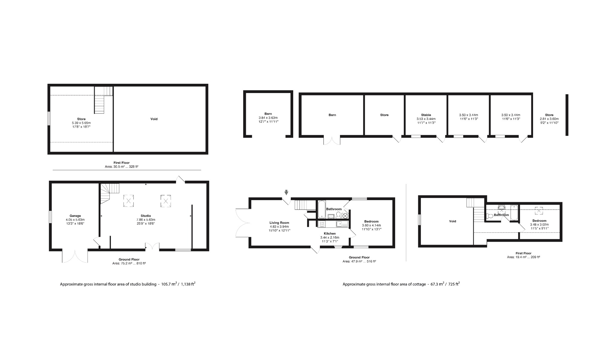
Large, private, 7 bedroom home with well balanced accommodation, a 2 bedroom cottage, 15 acres
A:EQUESTRIAN with 15 acres - Clewer, between Wedmore and Cheddar
7
BEDROOMS
5
BATHROOMS
5
RECEPTIONS
FEATURES
Stunning, extended farmhouse with spacious accommodation
15 acres of land - pasture, wooded hillside, mature gardens
Outdoor pool
Equestrian facilities - 3 Stables, hay barns, tack room, sand turnout and arena
2 bedroom, detatched cottage
Large, detatched studio barn with kiln
Located in a small hamlet between Wedmore and Cheddar at the end of a quiet 'no-through-road'
Very private, mature setting in a stunning rural location
Register to Property Alerts
Ever missed out on the perfect property just because you heard about it too late, or the Estate Agent never told you about it as it was slightly outside of your criteria? Never miss out again by using our “Heads Up Property Alerts”.
WHY CHOOSE US?
For sellers and landlords who value honest advice, expert strategy, and a team that sees every detail through, Roderick Thomas delivers results without the usual noise. We tell you what works, act on it, and get it done.







