CRIB COTTAGE,
CRIB HOUSE LANE, CRICKHAM, WEDMORE, SOMERSET, BS28 4JS
Wedmore 1.5miles, Cheddar 3.5miles, Wells 9 miles, Bristol Airport 13 miles, Bristol 21miles.
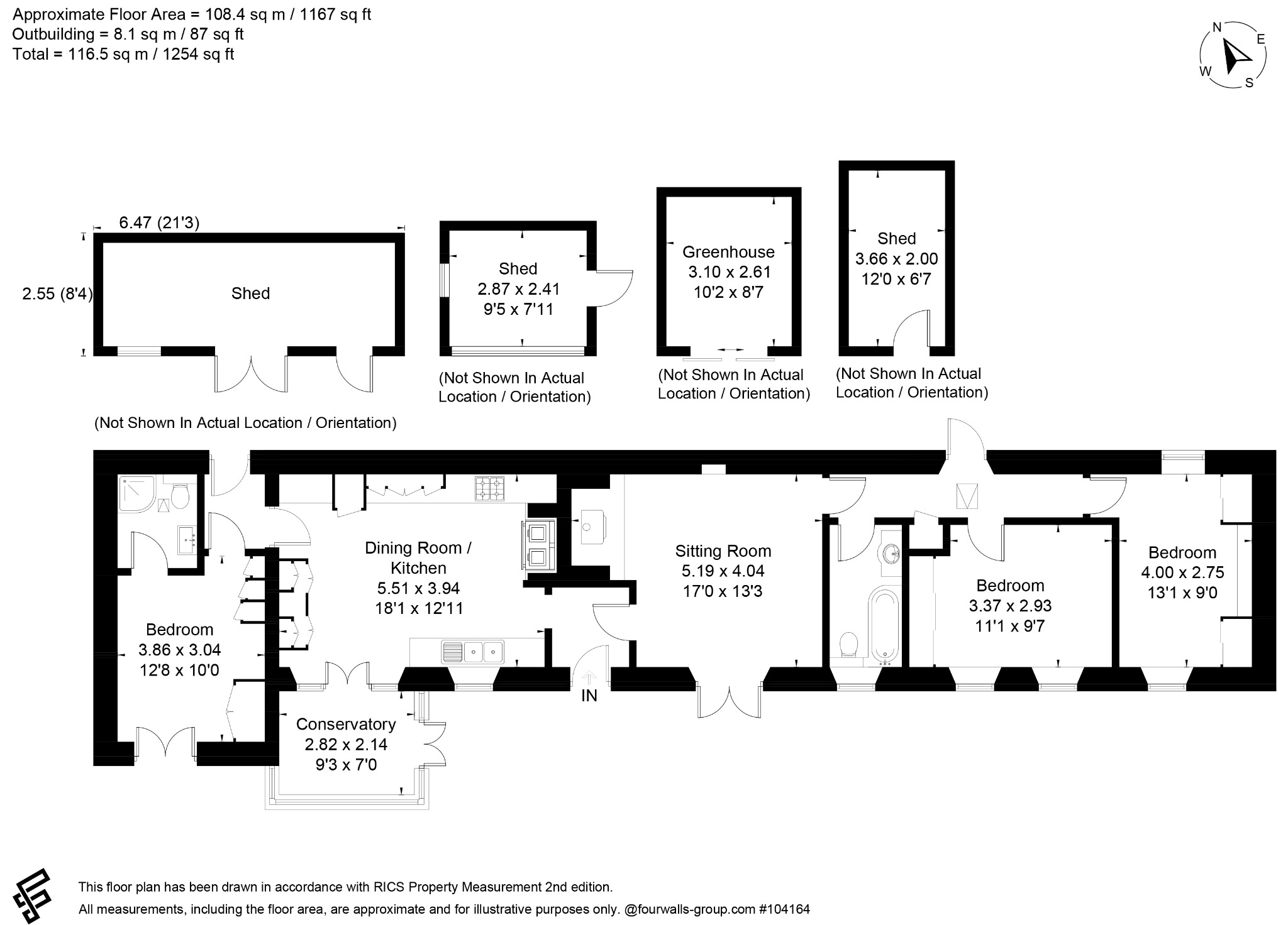
The house offers an entrance hall, superb kitchen/diner with classic farmhouse style painted timber units and plenty of space for a kitchen table and chairs, sunny conservatory, rear hall, sitting room with inglenook fireplace, 3 bedrooms, an ensuite shower room, and separate family bathroom.
Outside there is an enclosed cottage garden, plenty of parking on a gravel drive at the front, a garden storage shed and potting shed. The gardens are wrap around the property to the rear where there is further parking, 2 storage buildings, a wood shed, a Rhino greenhouse and an appealing rural outlook.
Location
The house sits on the edge of a small, friendly hamlet, 1.5miles from Wedmore.
Crickham has a strong sense of community, and the local pub is known for its traditional atmosphere and convivial musical evenings. The surrounding area is mainly farmland and farmhouses, with many excellent footpaths and fabulous views. Further facilities, including schools, shops, cafes, restaurants and the church are available in the popular village of Wedmore and in addition, Wedmore Golf Club is just over a mile away.
Description
A very appealing, single-storey barn conversion, thought to have been a dairy. Traditional features such as front ‘stable door’, exposed beams, attractive exposed stone walls and pine ledge and brace doors give this property an authentic, rustic feel.
The superb kitchen/dining room is the heart of this home and recently updated windows and doors (2021) and a new roof (2025), ensure house offers extremely comfortable accommodation.
The fully enclosed gardens are perfect for pets or children and there is plenty of parking - including space for a recreational vehicle at the rear.
Various timber outbuildings offer storage and further potential STP.
In summary, this is an attractive, well maintained, rural property on a manageable scale.
Accommodation
The front door opens to an entrance hall, to the left is a s...