Monthly
£3,500
Let Agreed
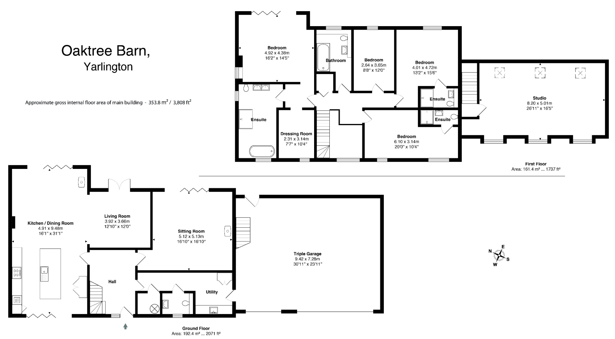
Oaktree Barn, Yarlington, BA9 8DW.
A:yarlington, somerset
4
BEDROOMS
4
BATHROOMS
2
RECEPTIONS
FEATURES
Exclusive edge of village development – One of just three substantial detached homes
Exceptional living spaces spanning over 3,800 sq. ft.
Bespoke kitchen with quartz worktops, central island and high-quality appliances.
Outstanding master suite with dressing room, en suite bathroom and glass balcony enjoying far-reaching views.
Triple garage with studio – Electric roller doors and 430 sq. ft. room above, ideal for office or gym
Landscaped gardens – Generous lawns, paved terrace and views towards Yarlington church.
Register to Property Alerts
Ever missed out on the perfect property just because you heard about it too late, or the Estate Agent never told you about it as it was slightly outside of your criteria? Never miss out again by using our “Heads Up Property Alerts”.
WHY CHOOSE US?
For sellers and landlords who value honest advice, expert strategy, and a team that sees every detail through, Roderick Thomas delivers results without the usual noise. We tell you what works, act on it, and get it done.
















































