NORTHACRE FARM, BRATTON SEYMOUR, SOMERSET, BA9 8BY
A beautifully situated five-bedroom modern country house with around ten acres of land and commanding views towards King Alfred's Tower.
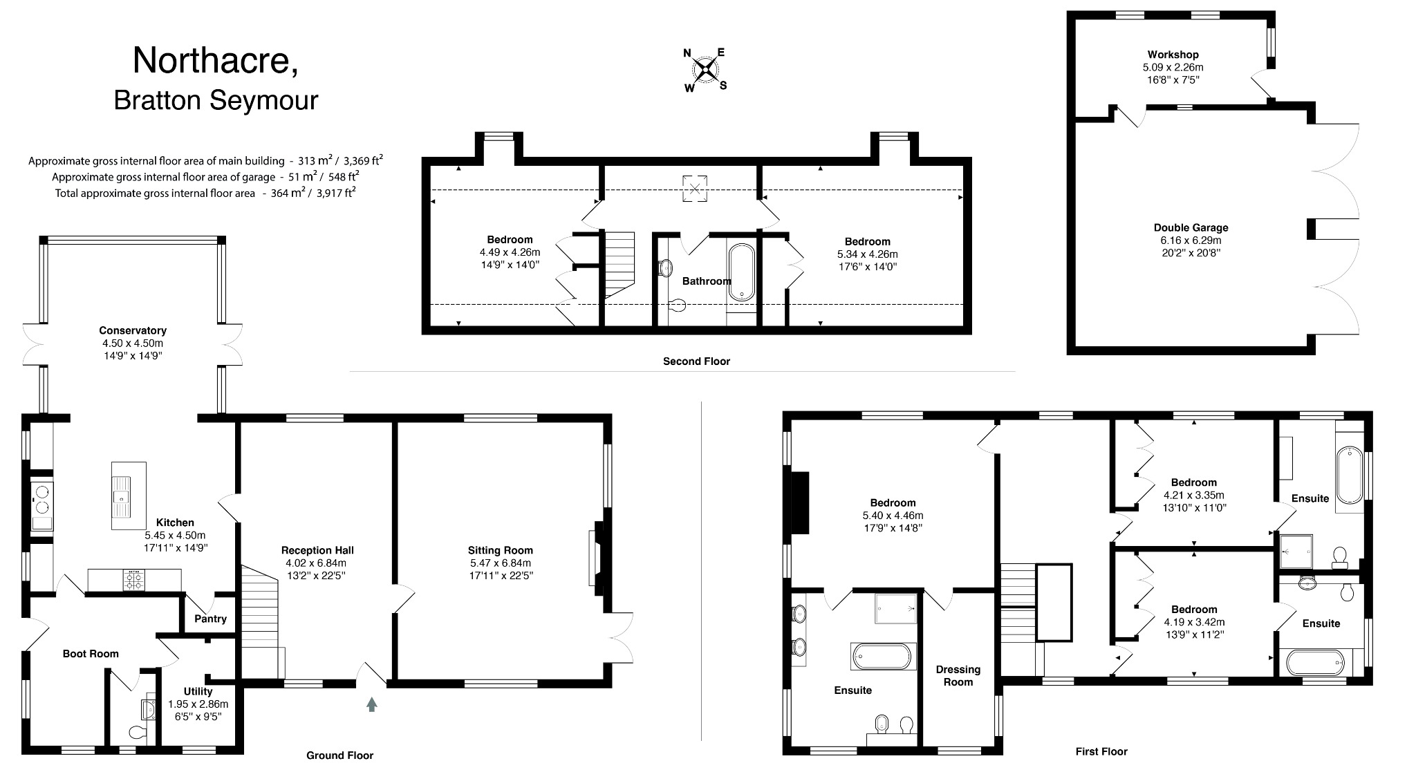
Northacre Farm enjoys an idyllic hillside location close to Castle Cary and Bruton. The property has spacious and light-filled accommodation, including a reception hall, sitting room, kitchen, dining room, boot room, utility, cloakroom, five double bedrooms, including a master suite with bathroom and dressing room, two further en-suites and a bathroom.
There is ample parking, a double garage with adjoining workshop, and approximately 1.1 acres of gardens and a circa 9-acre paddock.
Accommodation
Northacre is a detached, modern country house that combines traditional character with contemporary design, finished to a high standard throughout. The property features large, open-plan living spaces flooded with natural light. The property has attractive red brick elevations, with three reception rooms all oriented to take in the spectacular views across to King Alfred's tower.
From the parking area, a useful boot room with adjoining cloakroom and utility leads through to the newly fitted kitchen and breakfast room, centred around an AGA and opening into a bright conservatory-style dining room with panoramic garden views.
The triple-aspect sitting room features a wood-burning stove and French doors out to the garden terrace.
Between the sitting room and kitchen, there is a capacious reception hall which could easily be utilised as a formal dining room if desired. The stairs lead up from here to the first-floor landing.
On the first floor is the principal bedroom suite, which includes a generous double bedroom with exceptional views, a dressing room and a luxurious en suite bathroom. Completing this floor, two further double bedrooms also enjoy recently updated en suite bathrooms, and a further set of stairs rises to the second floor, which hosts two additional double bedrooms and a new, be...