Guide Price
£1,500,000
5 Bedroom detached house for sale
A:Winscombe, Near Sidcot School
5
BEDROOMS
3
BATHROOMS
4
RECEPTIONS
FEATURES
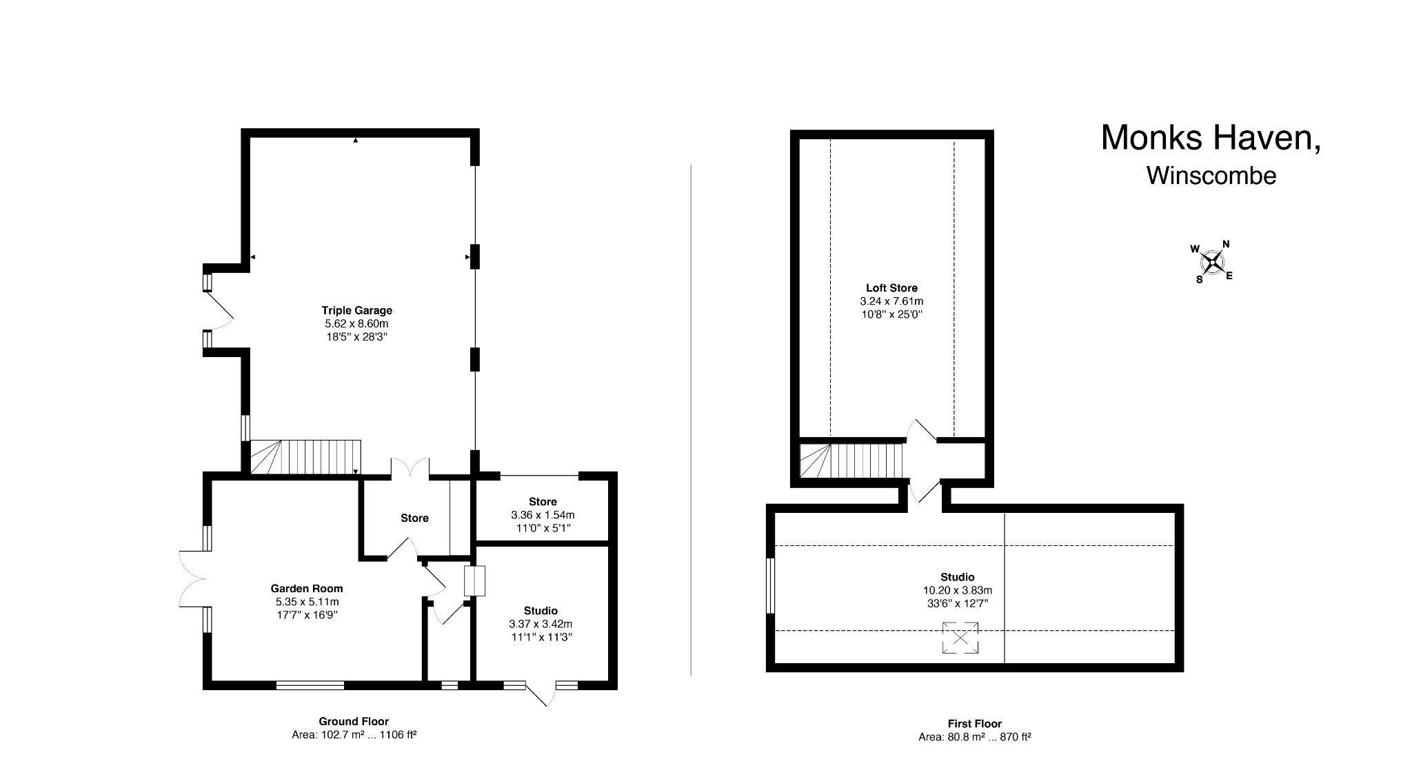
Historic but NOT listed 4/5 bedroom home
Detached triple garage and plenty of parking on tarmac drive
Large gardens with formal and informal areas
Detached Coach House with additional accommodation over two floors
Paddock and gardens totalling just over 2 acres
Walking distance to Sidcot School
500mts from all facilities in Winscombe
Register to Property Alerts
Ever missed out on the perfect property just because you heard about it too late, or the Estate Agent never told you about it as it was slightly outside of your criteria? Never miss out again by using our “Heads Up Property Alerts”.
WHY CHOOSE US?
For sellers and landlords who value honest advice, expert strategy, and a team that sees every detail through, Roderick Thomas delivers results without the usual noise. We tell you what works, act on it, and get it done.





