THE CIDER BARN
PANGBOROUGH, WELLS, SOMERSET, BA5 1PN
Wedmore 3 miles, Wells 5 miles Glastonbury 5 miles, Bath 24 miles, Bristol 25miles.
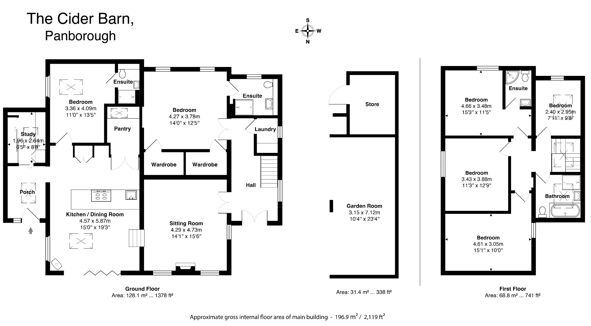
The accommodation consists of an entrance hall/porch, study, kitchen/dining room, a sitting room, rear hall and laundry. It has 6 double bedrooms, three have ensuite shower rooms and there is also a family bathroom.
Outside the house is approached over a gravel drive with parking for several cars. To the front there is an enclosed lawned garden with a fabulous, raised deck with a large open sided garden/party room and adjoining store and log store.
Location
The property is in the hamlet of Panborough, between the charming Cathedral City of Wells and the popular village of Wedmore.
Panborough and the other villages and hamlets close by have a vibrant and varied selection of classes, events and activities, many of which draw people from far and wide. The extremely popular Sheppey in Godney is only a couple of miles to the south and all other facilities including a cinema, various supermarkets, schools and restaurants can be found in Wells. Panborough is surrounded by open countryside which is traversed by footpaths and droves and the house enjoys wonderful views of the Mendip Hills to the north and Glastonbury Tor to the south.
Description
The original stone building has been imaginatively extended and adapted over the years to create a stylish, contemporary and unique country residence. Fabulous, large, tilt and turn windows, fully glazed bifold doors, vaulted ceilings, roof lights, exposed stone walls and bespoke, reclaimed wood panelling blend urban trends with rural integrity. There is plenty of space inside and out and the well-designed garden room provides an attractive, versatile, covered area for entertaining and relaxing, whatever the weather.
Accommodation
The front door opens to a bright entrance porch where there is plenty of space for coats and boots. Ahead is a cleverly designed study with workstation and floor-to-ceiling cupboards, for seamless storage. To the right is the kitchen/dining room. This dramatic, vaulted space is flooded with natural light fro...