Guide Price
£1,400,000
Opportunity to acquire a spacious, versatile farmhouse with land
A:Rural hamlet between Glastonbury and Castle Cary
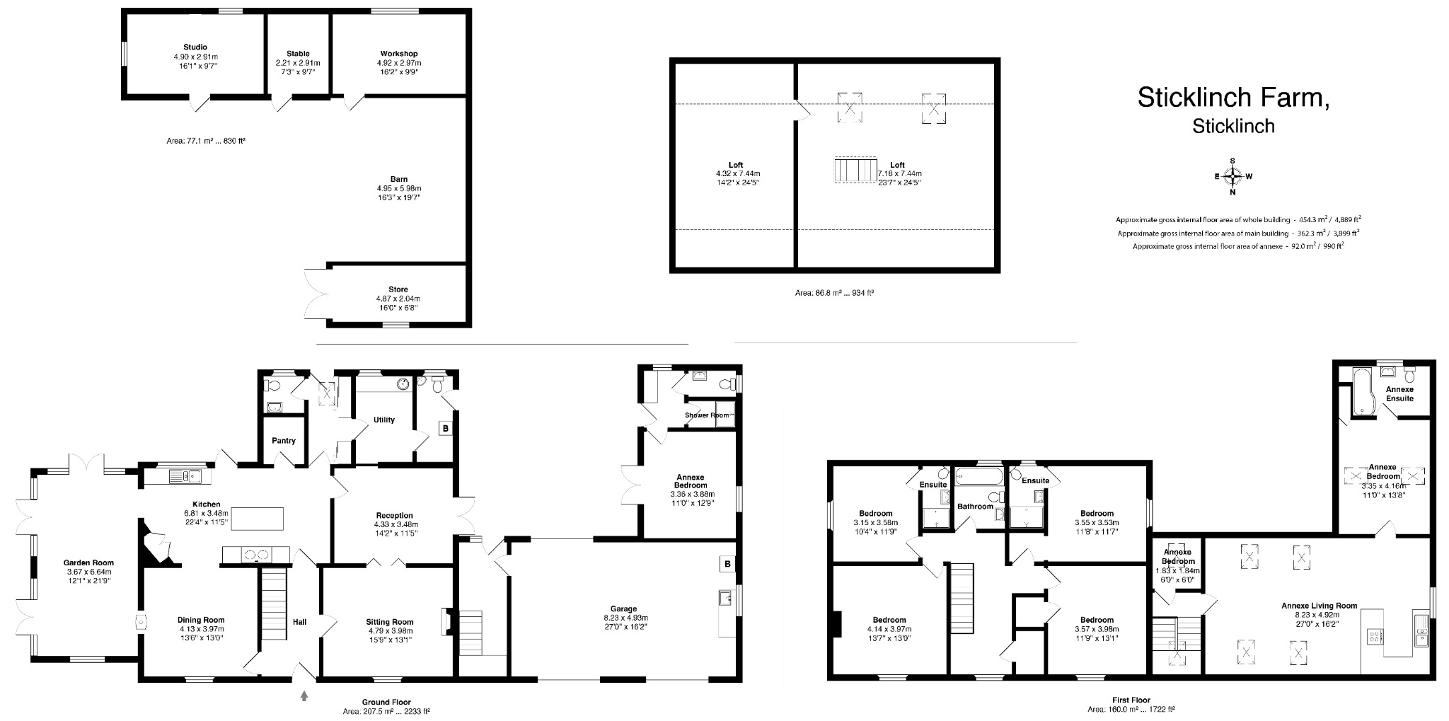
6
BEDROOMS
5
BATHROOMS
5
RECEPTIONS
FEATURES
Attractive farmhouse with land
In excess of 4 acres
Versatile self contained annexe
Ground floor additional bedroom with shower room
Castle Cary mainline station just 11 miles
Super spacious throughout - suitable for multigenerational living
Rural setting with far-reaching views
Almost 5000sqft of accommodation
Excellent double garage & useful buildings
Register to Property Alerts
Ever missed out on the perfect property just because you heard about it too late, or the Estate Agent never told you about it as it was slightly outside of your criteria? Never miss out again by using our “Heads Up Property Alerts”.
WHY CHOOSE US?
For sellers and landlords who value honest advice, expert strategy, and a team that sees every detail through, Roderick Thomas delivers results without the usual noise. We tell you what works, act on it, and get it done.












































