CRANHILL,
12 WELLS ROAD, GLASTONBURY, SOMERSET, BA6 9DH
A superb, extended, 4 bedroom family home, less than 200mts from the High Street, in a vibrant and popular market town.
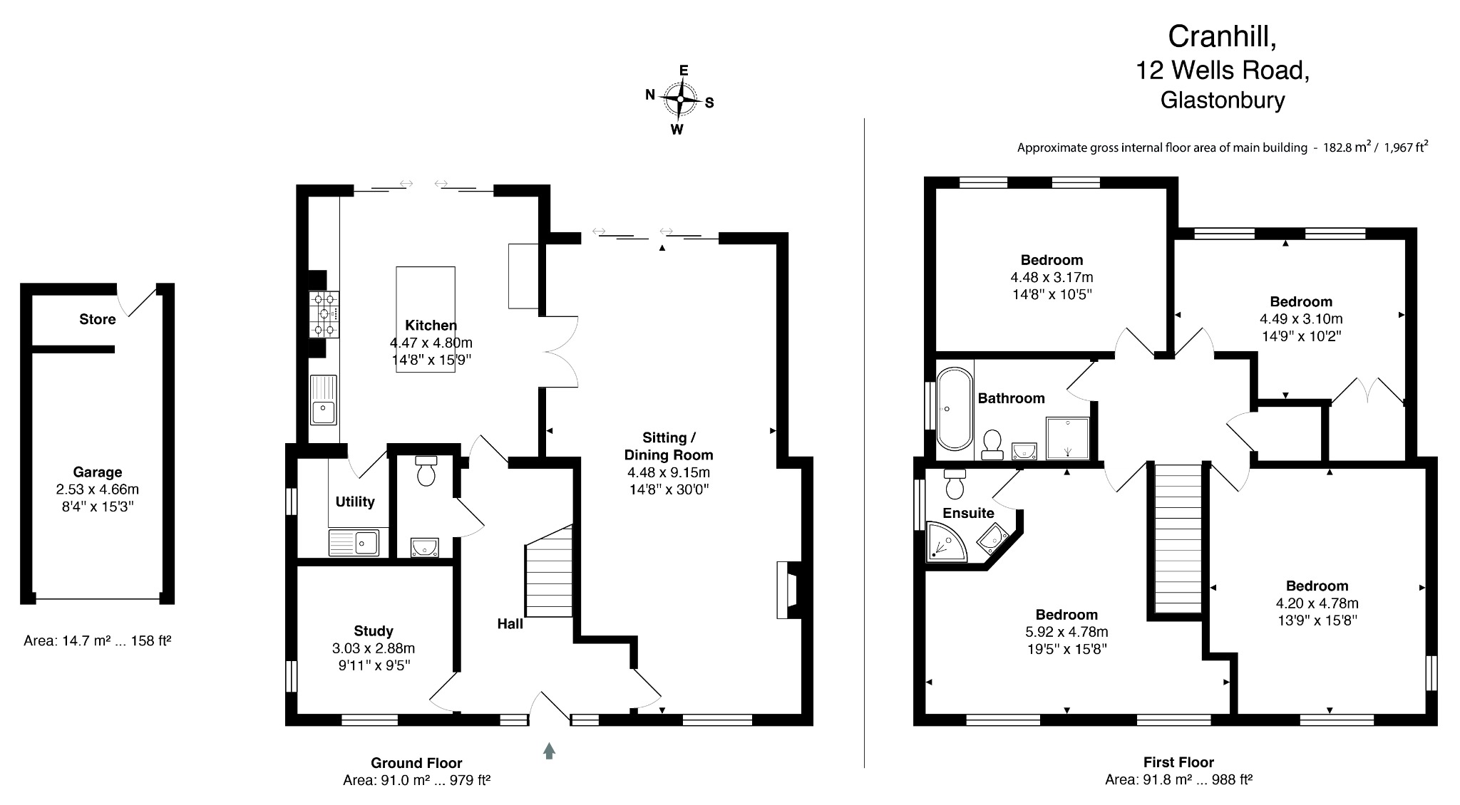
The house has an entrance hall, snug, cloakroom, kitchen/breakfast room, sitting room/dining room, 4 bedrooms, an ensuite shower room and family bathroom.
Outside there is parking for several vehicles at the front and lawn garden and garage. At the rear, there is a sunken terrace beside the house, and a lawned garden with an additional decked terrace and a garden tool shed.
Location
Situated in an elevated position, on the left at the top of the High Street, near the stunning Abbey grounds, and the magical Chalice Hill, with all the facilities Glastonbury has to offer on the doorstep.
Glastonbury is known for its spiritual and historic significance, and it hosts a rolling program of cultural events. The vibrant High Street has a variety of shops, café’s, excellent restaurants and pubs and there are a broad selection of inclusive and welcoming societies and clubs. Further afield, Wells, Street and Castle Cary offer more facilities if required.
Description
A handsome, double fronted, detached family home in a highly desirable location. Refurbished and extended just over 10 years ago, this wonderful property has extremely comfortable and spacious accommodation, is fully double glazed, and occupies a generous, elevated plot.
Accommodation
The front door opens to a welcoming central hallway. To the right is the sitting room/dining room and to the left is a snug/study with a fireplace with electric fire as a focal point. Beyond this, there is ample space under the stairs for storing coats and boots and opposite is a cloakroom.
A glazed, internal door opens to the stunning kitchen/breakfast room which has a central island, and like rest of the kitchen, this has an attractive walnut worksurface plus a breakfast bar, for casual dining, which looks out through the French doors to the garden beyond. A fabulous Rangemaster cooker w...