RUSHLANDS HOUSE, KNOWLE LANE, WOOKEY, BA5 1LB
Wells 1.4 miles, Glastonbury 6 miles, Castle Cary Stn. 15 miles, Wedmore 6.4 miles, Bristol 22 miles
A generous family house in a quiet, peaceful setting on the edge of this popular village just over a mile or so from Wells.
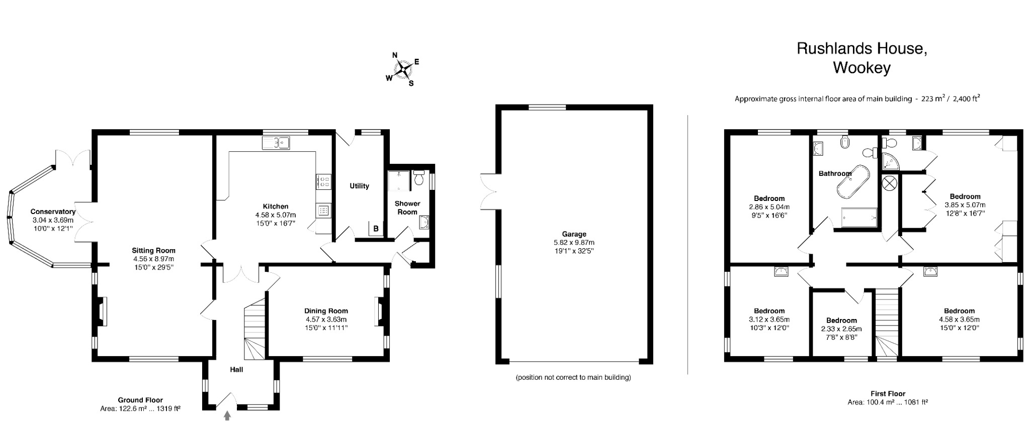
The accommodation includes a hall, a 30ft. sitting room, conservatory, dining room, kitchen/breakfast room, utility, shower room and on the first floor – 5 bedrooms, bathroom and an en suite shower room.
Outside there is plenty of parking space, and an easily managed garden of about half an acre
Location
Wookey (not to be confused with Wookey Hole which is a different village a couple of miles away) is a pretty village only a few minutes' drive to the centre of Wells. Within the village are an original flour mill producing stoneground flour and homemade bread, a very popular cafe and shop, a goat farm producing handmade goats' cheese and other artisanal products, a medieval church, 3 pubs, a part-time post office and a primary school. In addition, it has a friendly, welcoming and active community.
A pavement leads to Wells, which is within walking distance.
Footpaths
Close by are access points to miles of public footpaths which give access to a network of paths through the beautiful Somerset countryside.
Description
Rushlands is a handsome and substantial house standing in its own grounds in a peaceful setting. It has lots of living space and plenty of bedrooms and bathrooms. It also enjoys a fresh, light and airy environment
The front door opens into a central hall. To the left the sitting room has a triple aspect, a marble fireplace with a wood burner and French doors to the conservatory. This is a very pleasant room with a tiled floor and French doors to a garden terrace.
On the opposite side of the hall is a dining room which has a stone fireplace, also with a wood burner.
The kitchen is approached directly from the sitting room and also by double doors from the hall. It has a tiled floor, a good range of fitted units, tiled splashbacks, a two-bowl sink unit and appliances including a dishwasher double oven integrated hob and extractor unit.
Off the ki...