Oiro
£470,000
Period three bedroom home with parking and garden, close to Castle Cary High Street
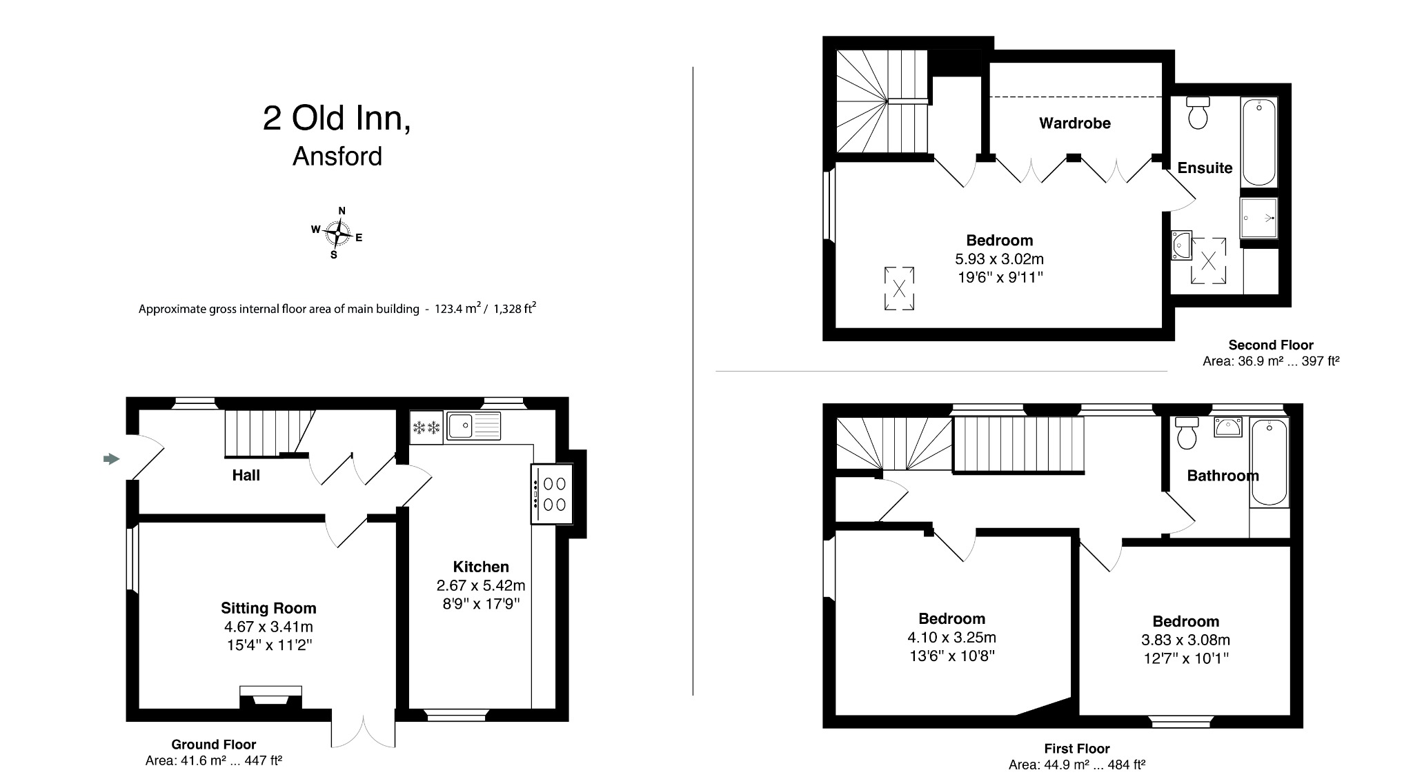
A:2, Old Ansford Inn, Castle Cary
3
BEDROOMS
2
BATHROOMS
1
RECEPTIONS
FEATURES
Charming Grade II listed three-bedroom period home built of local Hadspen stone
Spacious kitchen/dining room with fitted units, granite-effect worktops and integrated appliances
Dual-aspect sitting room featuring a central fireplace with electric wood-effect stove
Large second-floor master suite with exposed beams, built-in wardrobes and ensuite shower room
South-facing garden with lawn, flower borders and stone wall boundaries
Driveway parking for two cars and a garage
Within walking distance of Castle Cary High Street
Easy access to Castle Cary railway station
Register to Property Alerts
Ever missed out on the perfect property just because you heard about it too late, or the Estate Agent never told you about it as it was slightly outside of your criteria? Never miss out again by using our “Heads Up Property Alerts”.
WHY CHOOSE US?
For sellers and landlords who value honest advice, expert strategy, and a team that sees every detail through, Roderick Thomas delivers results without the usual noise. We tell you what works, act on it, and get it done.









