Guide Price
£350,000
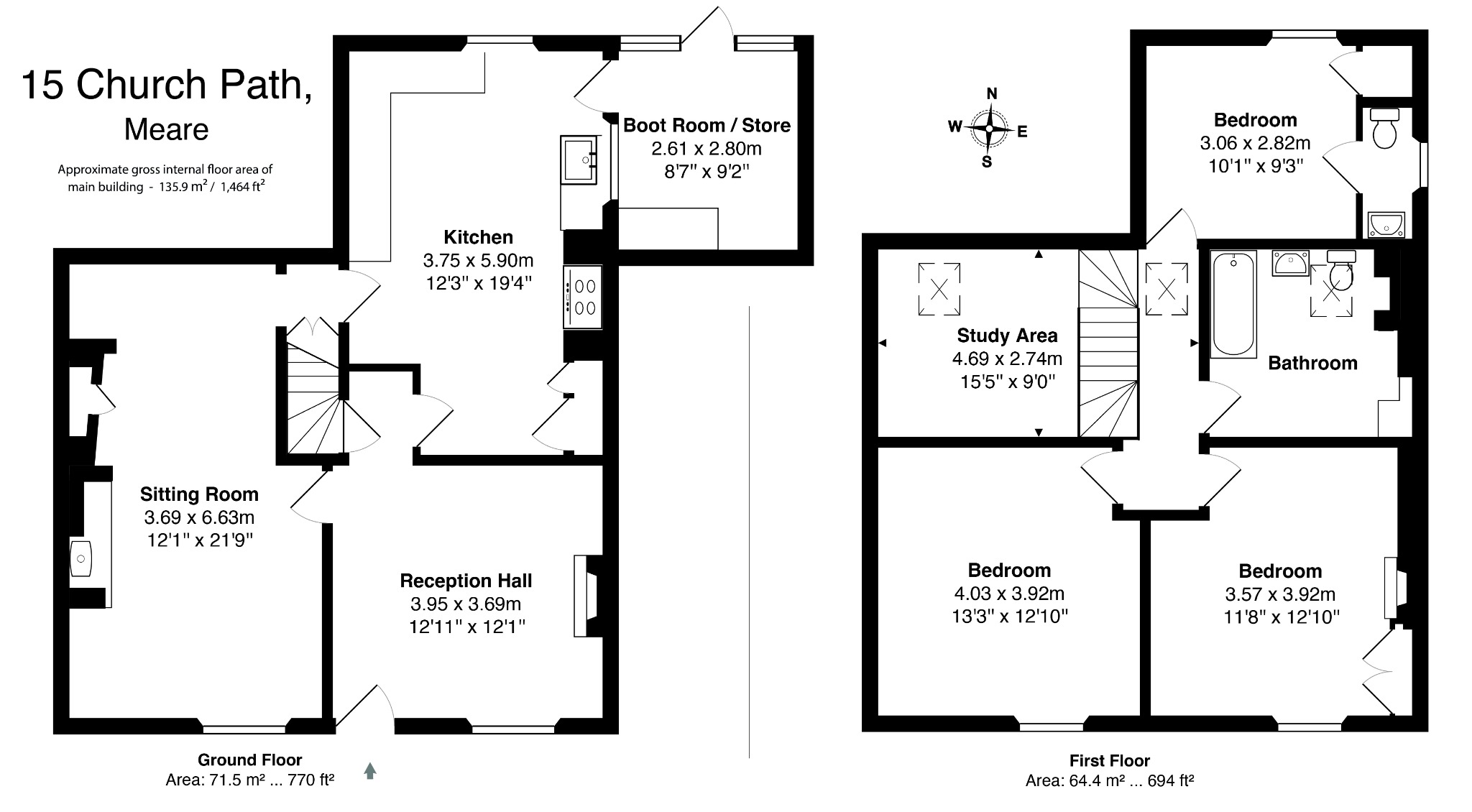
Character terrace cottage in Meare
A:Central Meare, between Wedmore and Glastonbury
3
BEDROOMS
1
BATHROOMS
2
RECEPTIONS
FEATURES
Charming, period terrace property in a quiet village location
Many period features including flagstone floors and beams
Bespoke, rustic, timber kitchen with authentic, welcoming charm
Large landing suitable for study or snug
Utility/boot room
Front garden
Interconnecting door to No. 17 if required (will be blocked if sold separately)
One of a pair of side by side cottages
Village junior school
Register to Property Alerts
Ever missed out on the perfect property just because you heard about it too late, or the Estate Agent never told you about it as it was slightly outside of your criteria? Never miss out again by using our “Heads Up Property Alerts”.
WHY CHOOSE US?
For sellers and landlords who value honest advice, expert strategy, and a team that sees every detail through, Roderick Thomas delivers results without the usual noise. We tell you what works, act on it, and get it done.






























