Guide Price
£385,000
Central, highly desirable residential location
A:Central Shepton, backing onto charming farmland
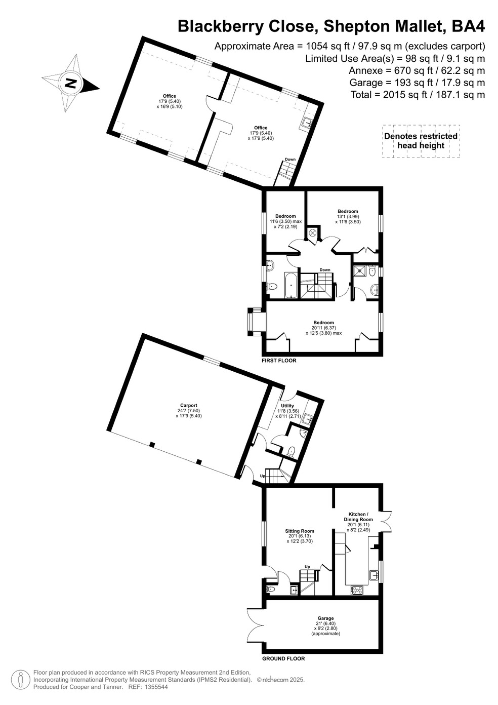
3
BEDROOMS
2
BATHROOMS
1
RECEPTIONS
FEATURES
Stunning views over farmland to the rear
Single carport and additional off street parking for 2
Attached, self-contained business unit with kitchen and w.c.
Cheerful, bright and airy accommodation
Low-maintenance garden overlooking farmland
2 timber sheds
House features 3 bedrooms and 2 bathrooms
Register to Property Alerts
Ever missed out on the perfect property just because you heard about it too late, or the Estate Agent never told you about it as it was slightly outside of your criteria? Never miss out again by using our “Heads Up Property Alerts”.
WHY CHOOSE US?
For sellers and landlords who value honest advice, expert strategy, and a team that sees every detail through, Roderick Thomas delivers results without the usual noise. We tell you what works, act on it, and get it done.










