6 THE PADDOCK, GALHAMPTON, YEOVIL, SOMERSET, BA22 7AR
A lovely three-bedroom semi-detached home, set within a superb edge-of-village location, close to Castle Cary.
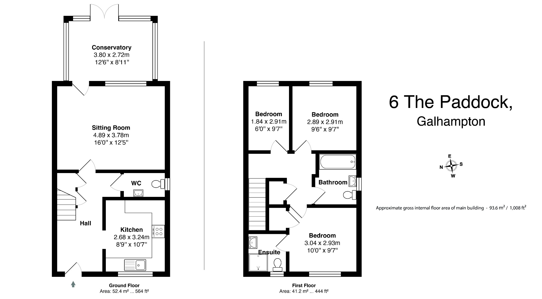
The property features an eco-friendly ground-source heat pump and comfortable accommodation, including an entrance hall, sitting room, conservatory, cloakroom, three bedrooms, one en-suite and a family bathroom.
There is allocated parking and a good-sized rear garden.
Accommodation
This three-bedroom semi-detached house combines contemporary design with a strong emphasis on energy efficiency and low-cost living. The property benefits from a ground-source heat pump, helping to bring down energy bills and underfloor heating throughout, making it an extremely comfortable home.
The accommodation is well laid out, with light-filled living spaces flowing naturally from one to another, creating a practical and sociable home suited to modern living. Entering the house, there is a central hallway, with a sitting room directly ahead and a kitchen on the right-hand side. Within the kitchen, there are plenty of units, space and plumbing for both a dishwasher and washing machine, as well as a freestanding electric oven with a hob above which is included in the sale. The kitchen has granite-effect worktops and tiled splashbacks.
The sitting room sits at the rear of the house and benefits from wood-effect floorboards and a door opening into a large conservatory. The conservatory provides a useful extra reception room and has French doors leading out into the garden. Completing the ground floor, there is a cloakroom with a loo.
Upstairs, there are three well-proportioned bedrooms, two of which are double rooms. The master bedroom has a stylish en-suite shower room and built-in wardrobes. The family bathroom serves the second and third rooms, and is fitted with a bath and overhead shower, a basin and w/c.
Outside
Immediately in front of the house, there is allocated parking. The garden lies to the rear of the house, and is fully enclosed, making it ideal for pets and children, as well as being laid to lawn for ease of maintenance. Immediately outside the conservatory, there is a patio area with an external electric point and lighting. A...