Guide Price
£535,000
Sutton Mallet, Somerset
A:Sutton Mallet, Somerset
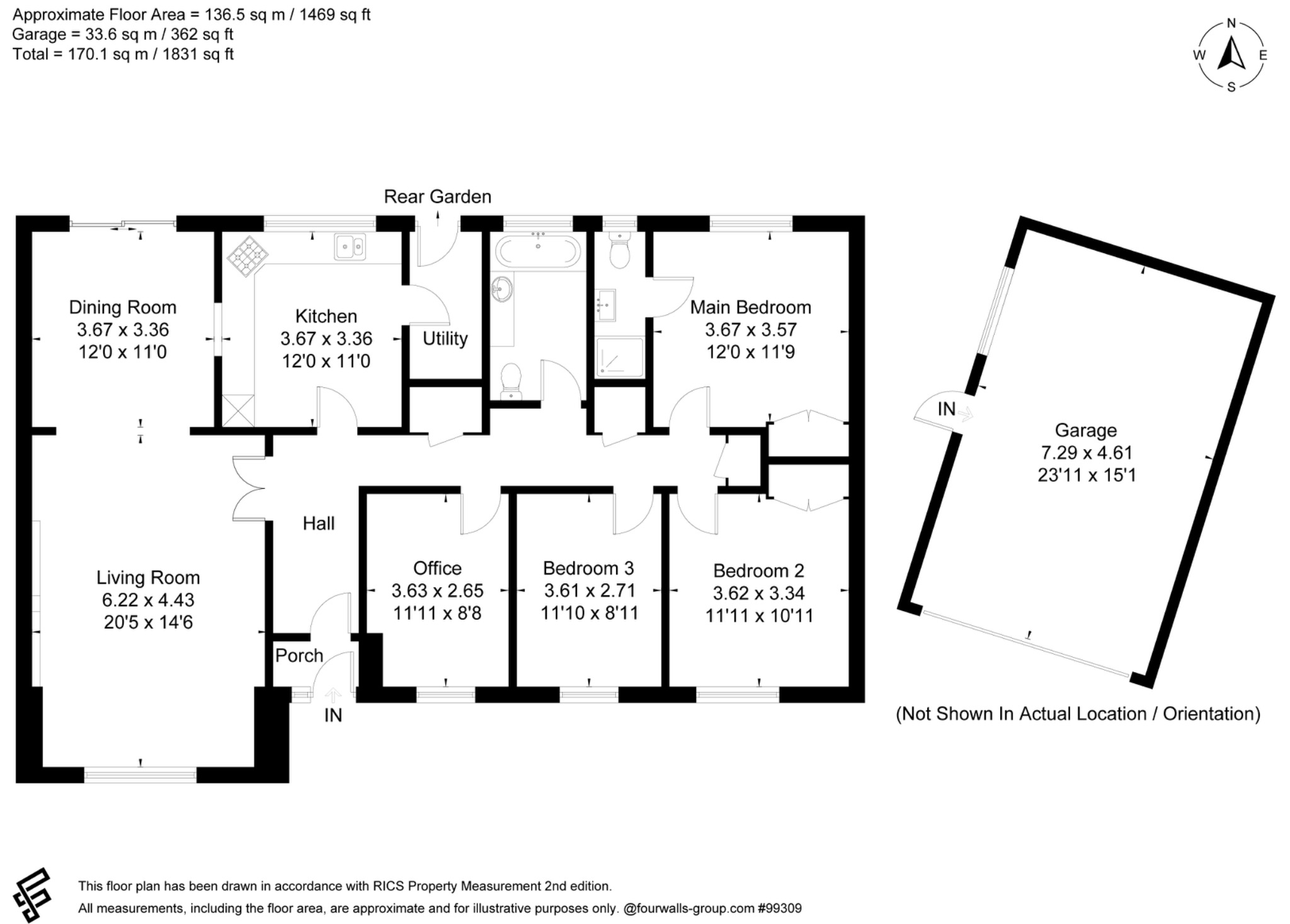
4
BEDROOMS
2
BATHROOMS
1
RECEPTIONS
FEATURES
Spacious detached bungalow
Four double bedrooms, two bathrooms and plenty of living space
Presented in very good order throughout
Quiet village location with great transport links
Generous gardens, garage and plenty of off road parking
Solar panels and EV charging facilities
Register to Property Alerts
Ever missed out on the perfect property just because you heard about it too late, or the Estate Agent never told you about it as it was slightly outside of your criteria? Never miss out again by using our “Heads Up Property Alerts”.
WHY CHOOSE US?
For sellers and landlords who value honest advice, expert strategy, and a team that sees every detail through, Roderick Thomas delivers results without the usual noise. We tell you what works, act on it, and get it done.










