Dovecote Barn, Weston Town, Evercreech, Somerset, BA4 6JG
Offers are invited in the region of £700,000
A charming and spacious detached barn conversion enjoying a generous plot in the heart of the ever-popular village of Evercreech, with four double bedrooms, 3 reception rooms offering flexible living space and multiple gardens incorporating two garages, private driveway, 2 garages and ample parking.
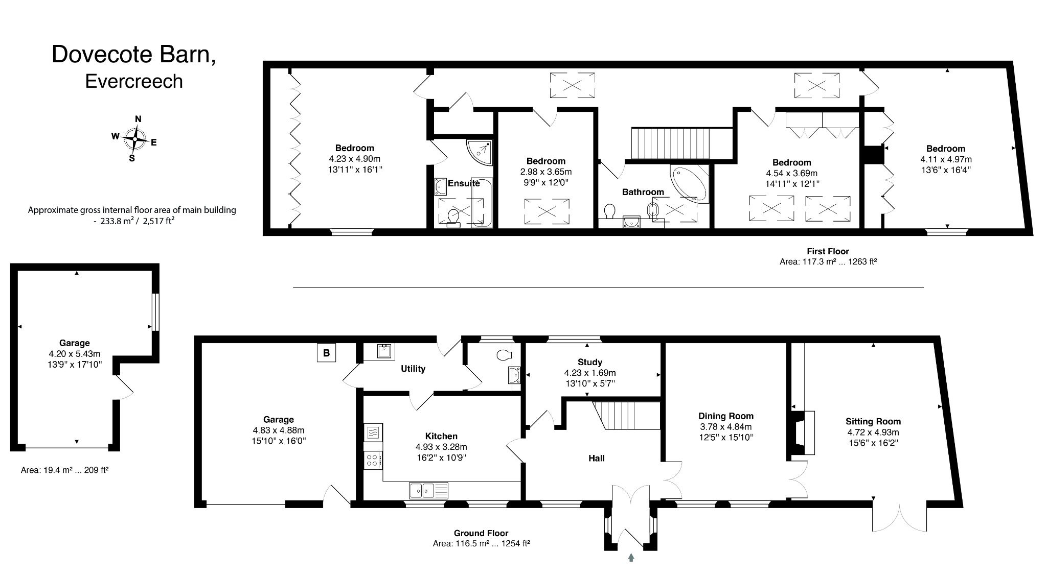
Accommodation
This well maintained and character-rich home offers exceptional space and versatility, ideally suited for family living. Spanning over 2,500sq.ft this property offers privacy within its boundary yet within walking distance of all amenities. The property conversion dates back to the1980s and enjoys many period features.
A porch opens into a large entrance hall that forms the heart of the home, with stairs rising to the first floor and a laminate floor underfoot.
There are two spacious front-facing reception rooms which are current arranged as a living room and dining room, both fitted with carpets and with windows facing the front lawns.The sitting room benefits from patio doors opening to the front garden, a wood burning stove and a stone feature wall.
From the entrance hall is a third reception room currently arranged as a home office, fitted with carpets and has a window to the rear.
To the front of the property is a large kitchen with ample room for a family dining table, fitted with ample wall and base storage units, a sink drainer, electric head height oven, an electric ceramic hob and extractor fan . There is space for a dishwasher and fridge freezer with other white goods situated within the adjoining utility room.
The utility room gives direct access to the rear garden, the internal garage and a downstairs cloakroom.
Upstairs is a notably large landing with a feature stone wall, generous Velux windows bringing in plenty of natural light, loft access and doors to all rooms.
There are four comfortable double bedrooms, three of which feature built-in w...