Guide Price
£575,000
SSTC
Spacious family home with masses of parking and enchanting, unspoilt, woodland garden
A:Gurney Slade between Wells and Bristol
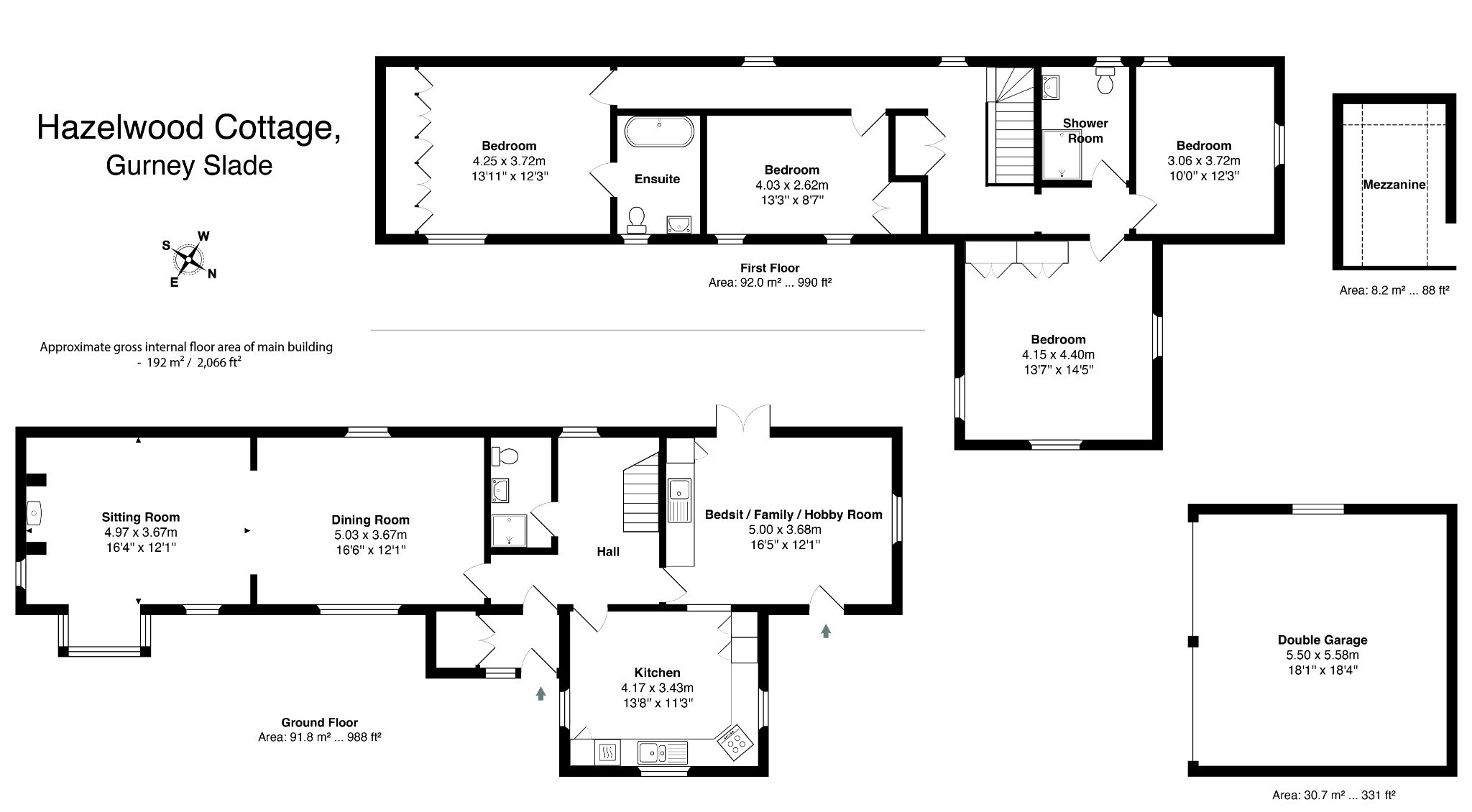
5
BEDROOMS
3
BATHROOMS
3
RECEPTIONS
FEATURES
Character, detached property
Spacious and very versatile accommodation
Masses of parking
Large, wooded garden
Garden office/cabin with wood burning stove
Double garage
Popular village with shop
Excellent communications
1 ensuite bathroom, 2 family shower rooms (one on the ground floor)
Register to Property Alerts
Ever missed out on the perfect property just because you heard about it too late, or the Estate Agent never told you about it as it was slightly outside of your criteria? Never miss out again by using our “Heads Up Property Alerts”.
WHY CHOOSE US?
For sellers and landlords who value honest advice, expert strategy, and a team that sees every detail through, Roderick Thomas delivers results without the usual noise. We tell you what works, act on it, and get it done.









































