5 Drayton Court, Bancombe Road, Somerton, TA11 6FN
Glastonbury 8 miles, Street 6 miles, Langport 4 miles. Castle Cary 10 miles (Paddington 1.5 hours). Yeovil 12 miles (Waterloo 2.5 hours). Taunton/M5 (J25) 16 miles. A303 3.5 miles (Distances & times approximate).
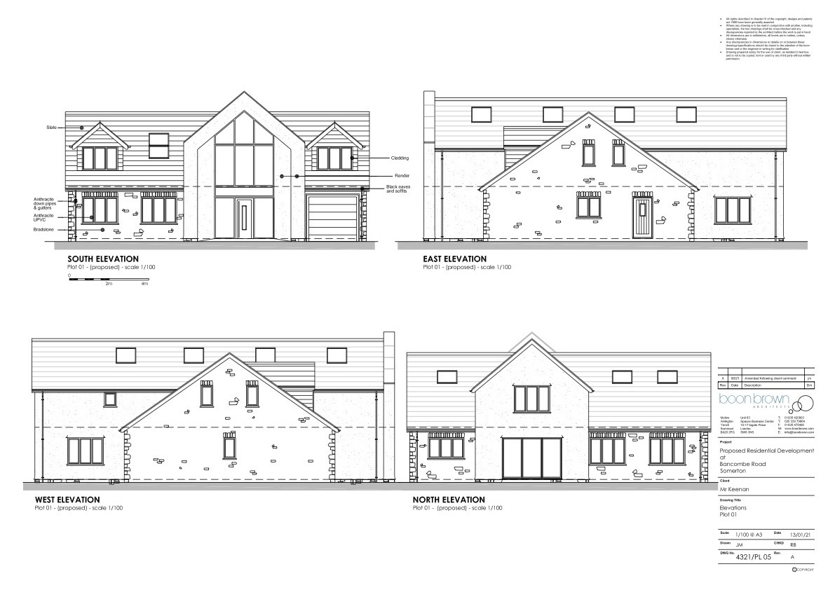
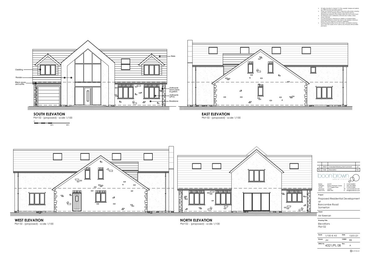
This is an exceptional opportunity to build a bespoke, high-specification home in the increasingly popular market town of Somerton. Situated on Bancombe Road, this generous building plot benefits from full planning consent (ref: 21/02136/REM) and offers the ideal canvas for those wishing to create something truly individual, tailored to their own needs, style, and vision. Two mirrored plots are available for sale, and could be sold as a pair or separately.
Somerton continues to grow in stature and appeal, blending historical charm with a progressive, welcoming atmosphere. The town centre, just a short distance away, provides an excellent range of independent shops, cafés, pubs, and essential amenities, alongside good schooling and easy road access to the A303 and beyond. With its strong sense of community and rich architectural heritage, it’s no surprise that Somerton has become a favoured destination for those looking to settle in Somerset.
The plot itself is well-positioned within an established residential setting, and the consented plans allow for a substantial and thoughtfully designed property, where attention to detail and quality of finish can be prioritised. The scope here is significant, whether a buyer is looking to create a forever family home or build for resale. Opportunities of this kind in such a well-regarded location are few and far between. The expected Gross Domestic Value is between £675,000 and £700,000. Smaller neighbouring units have been constructed and successfully sold, which gives confidence in the quality of this acquisition.
About the area
Somerton was an important town in Roman times and eventually became the capital of Wessex. It’s now a thriving Market Town in the heart of Somerset, yet with easy road access via the A303 road a few miles south, and the main line rail station at Castle Cary. Somerton provides a wide range of local services including a two small supermarkets, Doctors Surgery, a Library, a Butchers, Newsagent, Chemist and Post Office. Close by...