COOMBE BROOK, LAMBROOK STREET, GLASTONBURY, SOMERSET, BA6 8BY
This glorious, mainly early 19th Century, family home, together with its converted coach house and mature grounds, is in the heart of the town and provides the best of both worlds with amenities within walking distance and privacy, space and beautiful countryside on the doorstep.
A Grade ll listed jewel nestled within expansive private gardens.
Summary
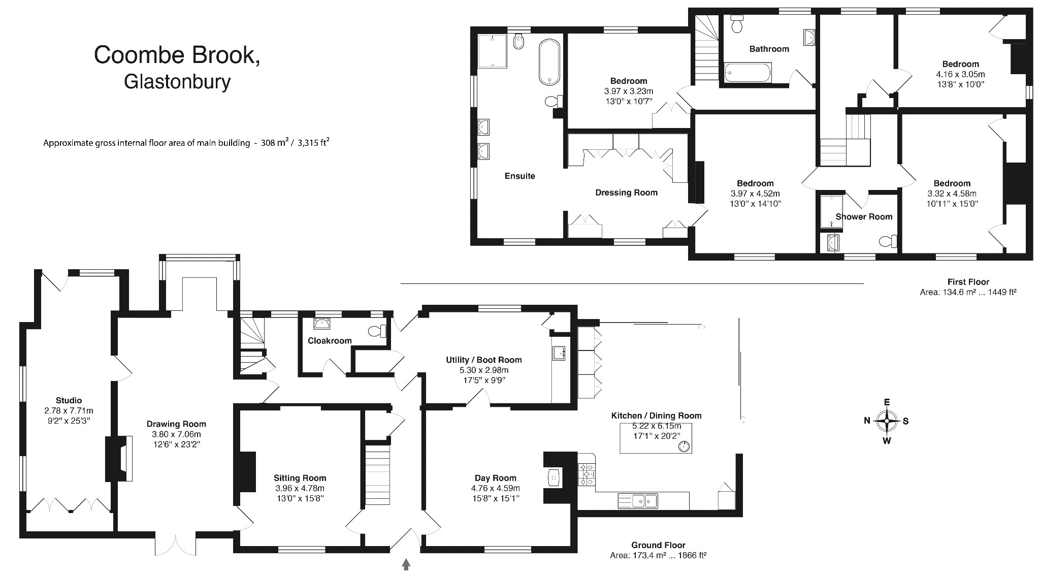
The house includes an entrance hall, cloakroom, 4 reception rooms, a superb kitchen/dining room and a large utility/boot room. Upstairs are 4 bedrooms, a dressing room and 3 bathrooms. This includes a splendid principal suite with a bedroom, a well-fitted dressing room and a large spa-style bathroom.
The coach house provides further accommodation with an impressive entrance hall, cloakroom, store, study and a splendid, open plan 34 ft. kitchen and living room with a high vaulted ceiling. Upstairs are three generous bedrooms, an ensuite shower room and a family bathroom. In total, the accommodation amounts to approximately 5,099 sq. ft.
At the rear is a garage.
The property has great privacy, approached by a tree-lined long drive leading to a gravelled parking area. The mature and well-landscaped grounds total nearly an acre and a half.
Location
Situated near the Abbey grounds, between the magical Chalice Hill and the High Street, Coombe Brook has access to all the facilities Glastonbury has to offer. It enjoys the privacy afforded by a long drive and large, enclosed established gardens.
Glastonbury is known for its spiritual and historical significance. It also has a vibrant High Street with a variety of shops, cafés, restaurants and pubs and it has a wide variety of inclusive and welcoming societies and clubs. Millfield Preparatory School at Edgarly is within a 5-minute drive, and the senior school in Street is less than 10 minutes by car.
Description
Dating back to at least the early 16th century this handsome house is mainly stone and brick built under a clay pantiled roof. The front elevation has ashlar quoins and plinth, some sash windows with keystones and an extremely attractive verandah. This shelters the central round-headed doo...