4 TIPCOTE HILL, SHEPTON MALLET, BA4 5EQ
Accommodation
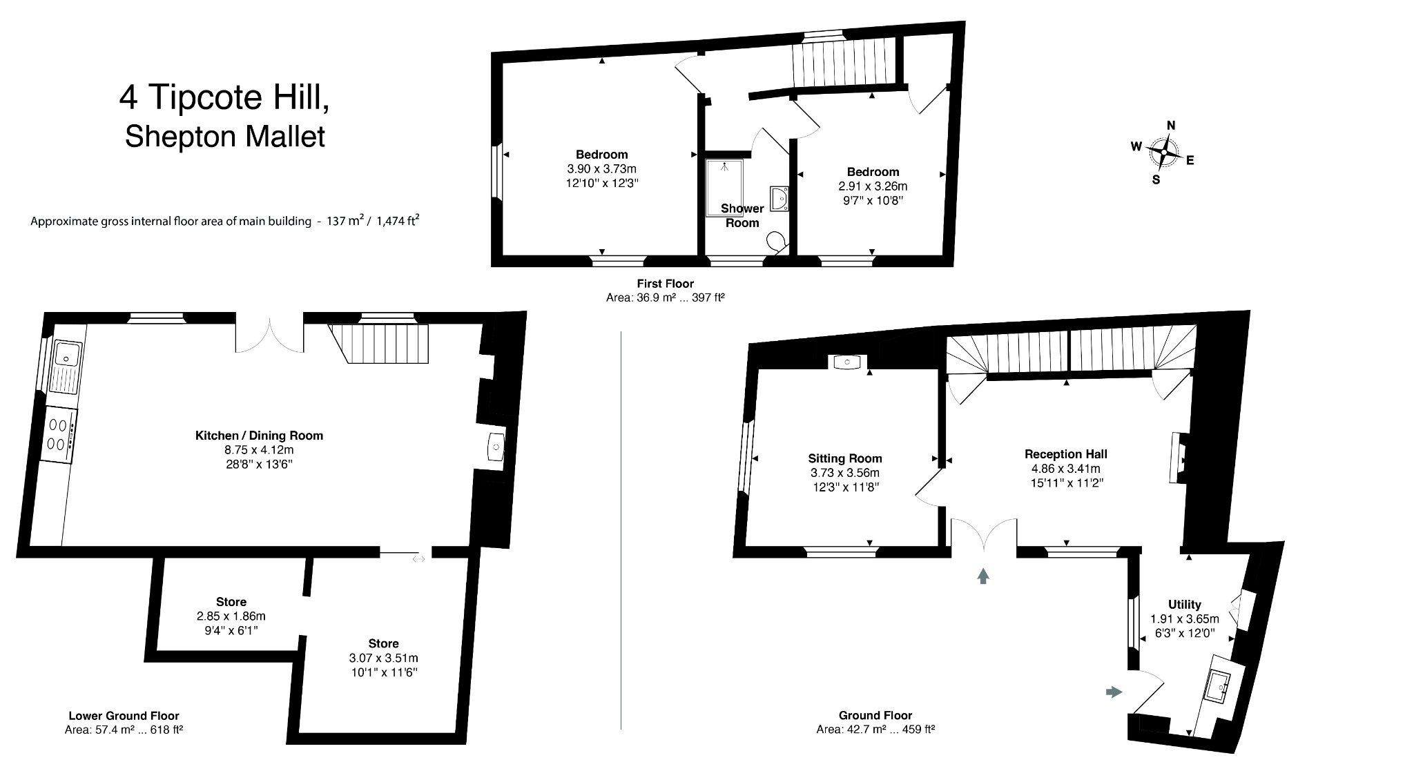
Tipcote Hill is an attractive two bedroom three storey cottage, which has had detailed renovation to now provide internal accommodation of two bedrooms and bathroom on first floor, cosy sitting room with burner, reception/dining room and utility on the ground floor.
There is then a wonderful converted sub level area of accommodation which has been tastefully renovated to offer 28ft of open plan living with installed kitchen and multi-use arrangement.
The home enters via the front low wall and iron fence enclosed courtyard with access doors into the utility area or into the reception/ dining room.
The front reception currently arranged as dining room is a great size with feature fireplace, high ceiling height, timber floor boards and storage with ample room for a family dining table and chairs.
Adjoining the reception is a cosy lounge which is dual aspect and has a feature fireplace with fitted burner and also has further exposed timber flooring.
The ground floor completes with a utility area within the single storey with fitted sink and door accessing the courtyard.
Making your way from the ground floor stairs lead up to the first floor which has two double size bedrooms which are both served by a modern three piece bathroom suite which is fitted with a walk in double shower unit, fitted close coupled toilet and wash hand basin inset into vanity unit.
There is an iron staircase then from ground floor into the sub level living, which boasts wonderful exposed stone walls and 28ft of open accommodation. There is an focal feature fireplace, fitted sink inset into the worktop, cooker with extractor hood over and attractive wall high radiators. The room enjoys lots of natural light and could work for adaptable living.
About the outside
Externally to the front, the home provides a low wall and iron railed enclosed courtyard.
The courtyard is laid with patio and provides a pleasant seating area.
About the area
Shepton Mallet is a vibrant and historic market town which has a heritage dating back to Roman times. The River Sheppey runs through...